2 194 €/mois cc
Nombre de pièces
1 pièce
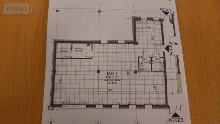
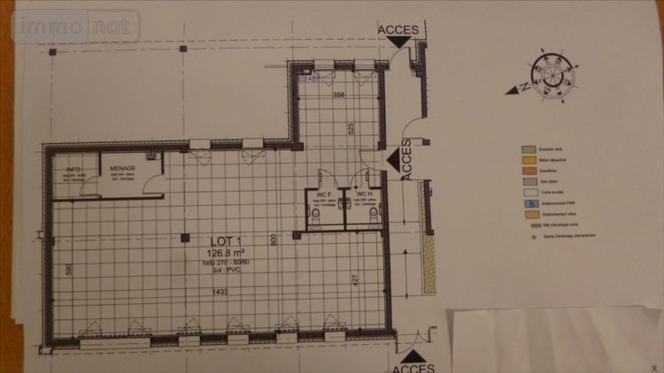
Surface habitable
126 m²
Référence
01032_25382238
Fonds ou murs commerciaux à louer à Ambérieu-en-Bugey dans l'Ain (01500, Réf : 01032_25382238)
Ambérieu-en-Bugey (01500)
Carte interactive
Découvrez l'environnement de ce bien immobilier : commerces, écoles, transports et services à proximité.
🏪 Commerces et services
Supermarchés, restaurants, banques et commerces de proximité.
🚇 Transports
Accès aux transports en commun, gares et temps de trajet.
🏫 Éducation
Écoles, collèges, lycées et établissements d'enseignement supérieur.
Consommation énergétique Max
0 €
Date DPE
23 septembre 2020
DPE Energie
Non renseigné
DPE GES
Non renseigné
DPE Lettre
?

Contacter l'office notarial
SELARL CGDM
191 bis rue Alexandre Berard 01500 Ambérieu-en-Bugey



