73 403 €
Caractéristiques
Surface terrain
433 m²
Référence
50026_25441937
Terrain à bâtir à vendre à Coudeville-sur-Mer en Manche (50290, Réf : 50026_25441937)
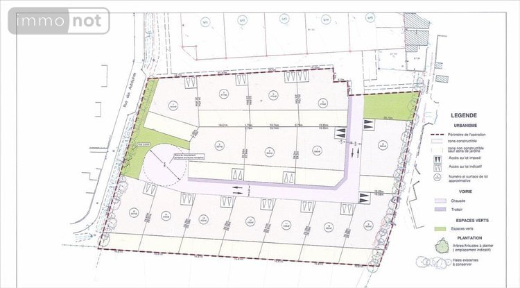
Dans le bourg, terrains en lotissement pour une superficie de 433 m2 à 582 m2.6 lots viabilisés, prix allant de 73.402,16 € à 90.762,00 €
les honoraires de négociation sont à la charge du vendeur.
Descriptif des lots :
LOT 7 : superficie 506 m2 - prix 78.936,00 €
LOT 9 : superficie 525 m2 - prix 88.998,00 €
LOT 10 : superficie 433 m2 - prix 73.402,16 €
LOT 11 : superficie 433 m2 - prix 73.402,16 €
LOT 12 : superficie 433 m2 - prix 73.402,16 €
LOT 15 : superficie 507 m2 - prix 85.946,64 €Les terrains sont libres de constructeur, l'étude vous propose en collaboration avec le constructeur ' Maisons Le Masson' deux projets.
Contacter Madame Marina PAUL au 06.48.68.88.44 ou par mail à l'adresse suivante : [email protected]
Coudeville-sur-Mer (50290)
Carte interactive
Points d'intérêt
Découvrez l'environnement de ce bien immobilier : commerces, écoles, transports et services à proximité.
🏪 Commerces et services
Supermarchés, restaurants, banques et commerces de proximité.
🚇 Transports
Accès aux transports en commun, gares et temps de trajet.
🏫 Éducation
Écoles, collèges, lycées et établissements d'enseignement supérieur.
Diagnostics
En attente des éléments de refontes du DPEConsommation énergétique Max
0 €
Date DPE
26 décembre 2025
DPE Energie
Non renseigné
DPE GES
Non renseigné
DPE Lettre
?
État des risques
Les informations sur les risques auxquels ce bien est exposé sont disponibles sur le site Géorisques : www.georisques.gouv.fr

Contacter l'office notarial
SCP THOUROUDE, VIMOND-ORY et DANJOU
9 rue Clément Desmaisons
50400 Granville
50400 Granville
Formulaire de contact
Les champs marqués d'un * sont obligatoires
Ces biens peuvent aussi vous intéresser

Achat
Maison
Réthoville (50330)

Achat
Maison
Morsalines (50630)

Achat
Maison
Gourbesville (50480)

Achat
Maison
Saint-Hilaire-Petitville (50500)

Achat
Terrain à bâtir
Le Mesnil-Raoult (50420)

Achat
Maison
Fervaches (50420)

Achat
Terrain à bâtir
Le Mesnil-Raoult (50420)

Achat
Maison
Fervaches (50420)

Achat
Maison
Fervaches (50420)

Achat
Terrain à bâtir
Le Mesnil-Raoult (50420)

Achat
Maison
Le Guislain (50410)

Achat
Maison
Saint-Hilaire-du-Harcouët (50600)


