15 350 €
Caractéristiques
Surface terrain
500 m²
Référence
53032_100561026
Terrain à bâtir à vendre à Cosmes en Mayenne (53230, Réf : 53032_100561026)
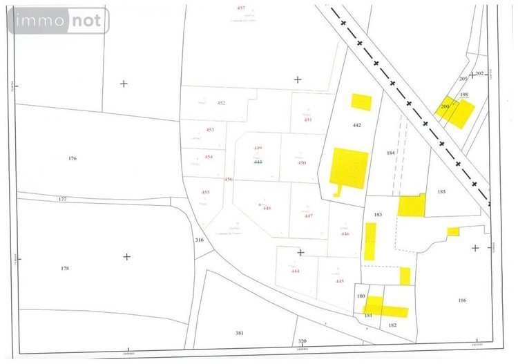
COSMES - Terrains constructibles viabilisés situé à COSMES.
Prix au mètre carré : 24 € HT / m² soit 28.30 € TTC / m².
Terrains entre 500 m² et 850 m².
COSMES est située à 4,5 km de COSSE LE VIVIEN, à 22 km de LAVAL (préfecture) et à 20 km de CHATEAU GONTIER.
La commune comprend une école maternelle et primaire.
Elle fait partie de la Communauté de Communes du PAYS DE CRAON.
Sur la base d'un terrain de 500 m² :
Prix net vendeur : 14 150 euros
Honoraires de négociation : 1 200 euros
Provisions sur frais d'acte : 2 500 euros
Cosmes (53230)
Carte interactive
Points d'intérêt
Découvrez l'environnement de ce bien immobilier : commerces, écoles, transports et services à proximité.
🏪 Commerces et services
Supermarchés, restaurants, banques et commerces de proximité.
🚇 Transports
Accès aux transports en commun, gares et temps de trajet.
🏫 Éducation
Écoles, collèges, lycées et établissements d'enseignement supérieur.
Diagnostics
En attente des éléments de refontes du DPEConsommation énergétique Max
0 €
Date DPE
22 décembre 2025
DPE Energie
Non renseigné
DPE GES
Non renseigné
DPE Lettre
?
État des risques
Les informations sur les risques auxquels ce bien est exposé sont disponibles sur le site Géorisques : www.georisques.gouv.fr

Contacter l'office notarial
SELARL Virginie MARSOLLIER-BIELA
14 rue de la perception 53230 Cossé-le-Vivien
Formulaire de contact
Les champs marqués d'un * sont obligatoires
Ces biens peuvent aussi vous intéresser

Achat
Terrain à bâtir
Cossé-le-Vivien (53230)

Achat
Terrain à bâtir
La Baconnière (53240)

Achat
Maison
Val-du-Maine (53340)

Achat
Bien agricole
Le Ribay (53640)

Achat
Maison
Lassay-les-Châteaux (53110)

Achat
Maison
Mayenne (53100)

Achat
Terrain à bâtir
Val-du-Maine (53340)

Achat
Maison
Val-du-Maine (53340)

Achat
Maison
Meslay-du-Maine (53170)

Achat
Maison
Courcité (53700)

Achat
Maison
Thubœuf (53110)

Achat
Maison
Prée-d'Anjou (53200)


