25 920 €
Caractéristiques
Surface terrain
650 m²
Référence
53032_19914952
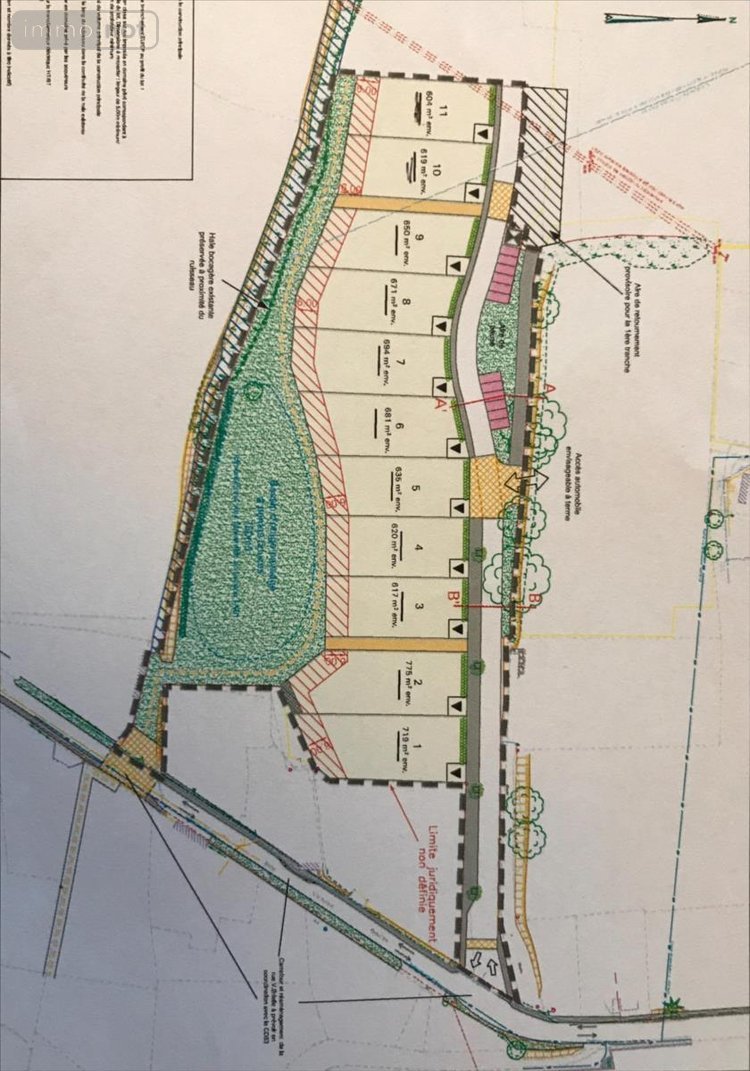
Terrain à bâtir à vendre à Méral en Mayenne (53230, Réf : 53032_19914952)
Terrains constructibles à vendre sur la commune de MERAL :Parcelles viabilisées situées en lotissement d'une surface allant de 604 à 775 m².Sur la base de 29 € HT/m² soit 34.80 € TTC/m².
Exemple : terrain de 650 m² au prix de 22.620 euros en sus les provisions sur frais d'acte notarié de 3.300 euros.
MERAL est situé à 6 kms de COSSE LE VIVIEN, et 23 kms de LAVAL. La commune dispose des commerces de proximité, écoles et transports scolaires.
Les informations sur les risques auxquels ce bien est exposé sont disponibles sur le site Géorisques : www. georisques. gouv. fr
Méral (53230)
Carte interactive
Points d'intérêt
Découvrez l'environnement de ce bien immobilier : commerces, écoles, transports et services à proximité.
🏪 Commerces et services
Supermarchés, restaurants, banques et commerces de proximité.
🚇 Transports
Accès aux transports en commun, gares et temps de trajet.
🏫 Éducation
Écoles, collèges, lycées et établissements d'enseignement supérieur.
Diagnostics
En attente des éléments de refontes du DPEConsommation énergétique Max
0 €
Date DPE
21 décembre 2025
DPE Energie
Non renseigné
DPE GES
Non renseigné
DPE Lettre
?
État des risques
Les informations sur les risques auxquels ce bien est exposé sont disponibles sur le site Géorisques : www.georisques.gouv.fr

Contacter l'office notarial
SELARL Virginie MARSOLLIER-BIELA
14 rue de la perception 53230 Cossé-le-Vivien
Formulaire de contact
Les champs marqués d'un * sont obligatoires
Ces biens peuvent aussi vous intéresser

Achat
Terrain à bâtir
Cossé-le-Vivien (53230)

Achat
Terrain à bâtir
La Baconnière (53240)

Achat
Maison
Val-du-Maine (53340)

Achat
Bien agricole
Le Ribay (53640)

Achat
Maison
Lassay-les-Châteaux (53110)

Achat
Maison
Mayenne (53100)

Achat
Terrain à bâtir
Val-du-Maine (53340)

Achat
Maison
Val-du-Maine (53340)

Achat
Maison
Meslay-du-Maine (53170)

Achat
Maison
Courcité (53700)

Achat
Maison
Thubœuf (53110)

Achat
Maison
Prée-d'Anjou (53200)


