74 500 €
Caractéristiques
Surface habitable
2867 m²
Surface terrain
2867 m²
Référence
l800227892
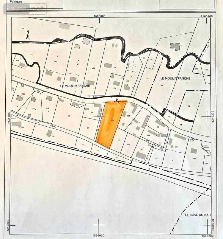
Terrain à bâtir à vendre à Touffreville dans l'Eure (27440, Réf : l800227892)
Beau et grand terrain à bâtir à vendre à Touffreville dans l'Eure (27), avec portail et garage existant. Une grande partie plate sur le devant puis monte par la suite.
Touffreville (27440)
Carte interactive
Points d'intérêt
Découvrez l'environnement de ce bien immobilier : commerces, écoles, transports et services à proximité.
🏪 Commerces et services
Supermarchés, restaurants, banques et commerces de proximité.
🚇 Transports
Accès aux transports en commun, gares et temps de trajet.
🏫 Éducation
Écoles, collèges, lycées et établissements d'enseignement supérieur.
Diagnostics
En attente des éléments de refontes du DPEConsommation énergétique Max
0 €
Date DPE
23 décembre 2025
DPE Energie
Non renseigné
DPE GES
Non renseigné
DPE Lettre
?
État des risques
Les informations sur les risques auxquels ce bien est exposé sont disponibles sur le site Géorisques : www.georisques.gouv.fr

Contacter l'office notarial
SAS Julien CAPRON
Sente de la Porte Rouge 27150 Étrépagny
Formulaire de contact
Les champs marqués d'un * sont obligatoires
Ces biens peuvent aussi vous intéresser

Achat
Terrain à bâtir
Chanteloup (27240)

Achat
Terrain à bâtir
Theillement (27520)

Achat
Terrain à bâtir
Thuit-Hébert (27520)

Achat
Terrain à bâtir
Barquet (27170)

Achat
Maison
Appeville-Annebault (27290)

Achat
Maison
Rosay-sur-Lieure (27790)

Achat
Terrain à bâtir
Le Bec-Thomas (27370)

Achat
Terrain à bâtir
Appeville-Annebault (27290)

Achat
Maison
Fiquefleur-Équainville (27210)

Achat
Terrain à bâtir
Perruel (27910)

Achat
Terrain à bâtir
Cesseville (27110)

Achat
Maison
La Poterie-Mathieu (27560)


