182 000 €
Caractéristiques
Nombre de pièces
3 pièces
Nombre de chambres
2 chambres
Surface habitable
61 m²
Référence
l800227959 ref: 31012023
Appartement à vendre à Brest dans le Finistère (29200, Réf : l800227959 ref: 31012023)
Appartement T3 avec cave - 61m² - Brest Secteur Petit Paris
Uniquement chez votre Notaire.
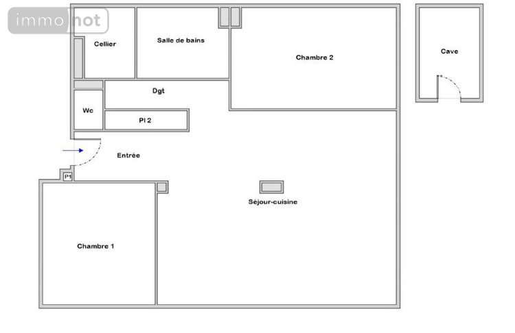
Situé au premier étage d'une copropriété en dalle béton et bien entretenue, venez découvrir cet appartement entièrement rénové du sol au plafond et proche de toutes commodités (bus, tramway, école, commerces).
Il se compose d'une cuisine équipée et aménagée haut de gamme de la marque LEICHT, ouvert sur un lumineux salon/séjour d'environ 30m², deux chambres, une salle de bains et une buanderie. Un WC séparé et un grand placard sont également disponibles à l'entrée du bien.
Appartement bien isolé et en parfait état.
Charges prévisionnelles annuelles : 880€
Les informations sur les risques auxquels ce bien est exposé sont disponibles sur le site Géorisques : www.georisques.gouv.fr
Brest (29200)
Carte interactive
Points d'intérêt
Découvrez l'environnement de ce bien immobilier : commerces, écoles, transports et services à proximité.
🏪 Commerces et services
Supermarchés, restaurants, banques et commerces de proximité.
🚇 Transports
Accès aux transports en commun, gares et temps de trajet.
🏫 Éducation
Écoles, collèges, lycées et établissements d'enseignement supérieur.
Diagnostics
En attente des éléments de refontes du DPEConsommation énergétique Max
840 €
Date DPE
17 janvier 2023
DPE Energie
105
DPE GES
20
DPE Lettre
C
État des risques
Les informations sur les risques auxquels ce bien est exposé sont disponibles sur le site Géorisques : www.georisques.gouv.fr

Contacter l'office notarial
SELARL Caroline PIRIOU, Notaire
10 place des fusillés 29850 Gouesnou
Formulaire de contact
Les champs marqués d'un * sont obligatoires
Ces biens peuvent aussi vous intéresser

Achat
Maison
Scrignac (29640)

Achat
Maison
Laz (29520)

Achat
Appartement
Trégunc (29910)

Achat
Maison
Plouguin (29830)

Achat
Maison
Plouescat (29430)

Achat
Maison
Cléden-Cap-Sizun (29770)

Achat
Maison
Plouguerneau (29880)

Achat
Maison
Saint-Pabu (29830)

Achat
Immeuble
Lannilis (29870)

Achat
Appartement
Carhaix-Plouguer (29270)

Achat
Immeuble
Saint-Pol-de-Léon (29250)

Achat
Terrain à bâtir
Trégunc (29910)


