345 840 €
Caractéristiques
Nombre de pièces
7 pièces
Nombre de chambres
3 chambres
Surface habitable
120 m²
Surface terrain
299 m²
Référence
l800231284 ref: 2023.1001
Maison à vendre à Crozon dans le Finistère (29160, Réf : l800231284 ref: 2023.1001)
Agréable maison à vendre Crozon dans le Finistère (29), en plein bourg, comprenant :
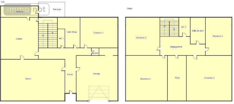
1°/ Au rez-de-chaussée : Un couloir d'entrée avec placards, salon-séjour ouvert sur cuisine aménagée et équipée, véranda, terrasse en bois, WC, salle d'eau (douche et lavabo sur colonne), une chambre, garage avec remise.
2°/ Au premier étage : Un palier desservant WC, une salle de bains (baignoire et lavabo sur colonne), une pièce (bureau/buanderie/lingerie), une grande pièce avec placards, un débarras, deux chambres avec placards.
3°/ Au-dessus : Combles.
Jardin à l'arrière et cour devant.
Crozon (29160)
Carte interactive
Points d'intérêt
Découvrez l'environnement de ce bien immobilier : commerces, écoles, transports et services à proximité.
🏪 Commerces et services
Supermarchés, restaurants, banques et commerces de proximité.
🚇 Transports
Accès aux transports en commun, gares et temps de trajet.
🏫 Éducation
Écoles, collèges, lycées et établissements d'enseignement supérieur.
Diagnostics
En attente des éléments de refontes du DPEConsommation énergétique Max
2 530 €
Date DPE
26 septembre 2023
DPE Energie
255
DPE GES
8
DPE Lettre
E
État des risques
Les informations sur les risques auxquels ce bien est exposé sont disponibles sur le site Géorisques : www.georisques.gouv.fr

Contacter l'office notarial
Me Pierre-Yves LE ROY
2 rue de Verdun 29160 Crozon
Formulaire de contact
Les champs marqués d'un * sont obligatoires
Ces biens peuvent aussi vous intéresser

Achat
Maison
Scrignac (29640)

Achat
Maison
Laz (29520)

Achat
Appartement
Trégunc (29910)

Achat
Maison
Plouguin (29830)

Achat
Maison
Plouescat (29430)

Achat
Maison
Cléden-Cap-Sizun (29770)

Achat
Maison
Plouguerneau (29880)

Achat
Maison
Saint-Pabu (29830)

Achat
Immeuble
Lannilis (29870)

Achat
Appartement
Carhaix-Plouguer (29270)

Achat
Immeuble
Saint-Pol-de-Léon (29250)

Achat
Terrain à bâtir
Trégunc (29910)


