699 300 €
Caractéristiques
Nombre de pièces
2 pièces
Nombre de chambres
1 chambre
Surface habitable
48 m²
Référence
l800232471
Appartement à vendre à Paris 4e Arrondissement à Paris (75004, Réf : l800232471)
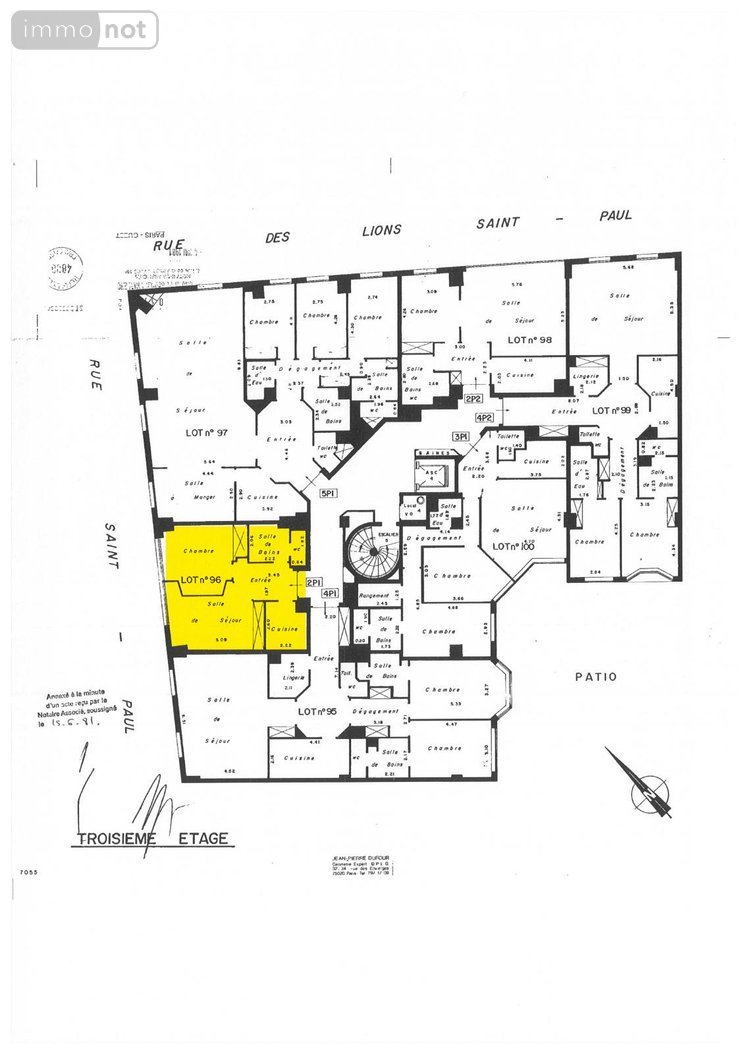
Au cœur du Marais, rue Saint-Paul, proche de la Seine, dans une copropriété restructurée dans le début des années 80, un appartement de 48,70 mètres carrés situé au troisième étage avec ascenseur, composé d'une entrée, d'un salon-salle à manger, d'une cuisine séparée (possibilité d'ouverture sur le salon), une chambre avec placards, une salle d'eau avec wc. Une cave en sous-sol. Chauffage collectif. Métro Saint-Paul.
Paris 4e Arrondissement (75004)
Carte interactive
Points d'intérêt
Découvrez l'environnement de ce bien immobilier : commerces, écoles, transports et services à proximité.
🏪 Commerces et services
Supermarchés, restaurants, banques et commerces de proximité.
🚇 Transports
Accès aux transports en commun, gares et temps de trajet.
🏫 Éducation
Écoles, collèges, lycées et établissements d'enseignement supérieur.
Diagnostics
En attente des éléments de refontes du DPEConsommation énergétique Max
700 €
Date DPE
5 février 2024
DPE Energie
154
DPE GES
24
DPE Lettre
C
État des risques
Les informations sur les risques auxquels ce bien est exposé sont disponibles sur le site Géorisques : www.georisques.gouv.fr
Formulaire de contact
Les champs marqués d'un * sont obligatoires
Ces biens peuvent aussi vous intéresser

Enchères en ligne
Appartement
Paris 7e Arrondissement (75007)

Enchères en ligne
Appartement
Paris 15e Arrondissement (75015)

Enchères en ligne
Appartement
Paris 14e Arrondissement (75014)

Enchères en ligne
Appartement
Paris 11e Arrondissement (75011)

Enchères en ligne
Appartement
Paris 13e Arrondissement (75013)



