142 425 €
Surface habitable
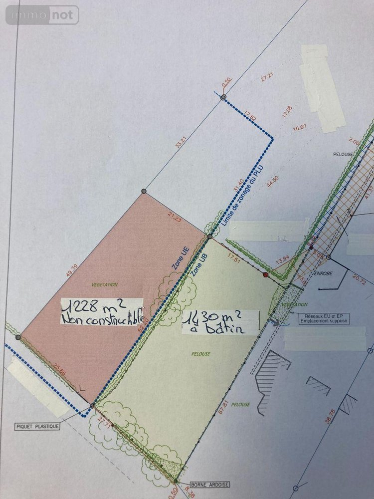
2658 m²
Surface terrain
2658 m²
Référence
0000012459__w1707300152561176
Terrain à bâtir à vendre à Chemillé-en-Anjou en Maine-et-Loire (49120, Réf : 0000012459__w1707300152561176)
Chemillé-en-Anjou (49120)
Carte interactive
Découvrez l'environnement de ce bien immobilier : commerces, écoles, transports et services à proximité.
🏪 Commerces et services
Supermarchés, restaurants, banques et commerces de proximité.
🚇 Transports
Accès aux transports en commun, gares et temps de trajet.
🏫 Éducation
Écoles, collèges, lycées et établissements d'enseignement supérieur.
Consommation énergétique Max
0 €
Date DPE
25 décembre 2025
DPE Energie
Non renseigné
DPE GES
Non renseigné
DPE Lettre
?

Contacter l'office notarial
SELAS OFFICE NOTARIAL DE CHEMILLE
49120 Chemillé-en-Anjou
Ces biens peuvent aussi vous intéresser














