6 600 €
Caractéristiques
Surface terrain
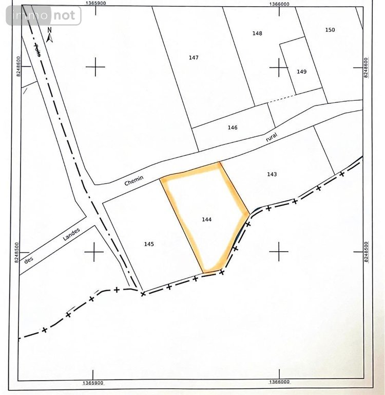
1685 m²
Référence
50061_24148039
Bien agricole à vendre à Neuville-en-Beaumont en Manche (50250, Réf : 50061_24148039)
A Neuville en Beaumont, une parcelle de terre plantée de 49 peupliers d'une contenance cadastrale d'environ 1685m².
N'hésitez pas à contacter Christine Duteurtre, Négociatrice à l'office notarial de Saint-Sauveur-le-Vicomte au 02.33.21.72.72 pour tout renseignement complémentaire.
Neuville-en-Beaumont (50250)
Carte interactive
Points d'intérêt
Découvrez l'environnement de ce bien immobilier : commerces, écoles, transports et services à proximité.
🏪 Commerces et services
Supermarchés, restaurants, banques et commerces de proximité.
🚇 Transports
Accès aux transports en commun, gares et temps de trajet.
🏫 Éducation
Écoles, collèges, lycées et établissements d'enseignement supérieur.
Diagnostics
En attente des éléments de refontes du DPEConsommation énergétique Max
0 €
Date DPE
16 décembre 2025
DPE Energie
Non renseigné
DPE GES
Non renseigné
DPE Lettre
?
État des risques
Les informations sur les risques auxquels ce bien est exposé sont disponibles sur le site Géorisques : www.georisques.gouv.fr
Formulaire de contact
Les champs marqués d'un * sont obligatoires




