239 900 €
Caractéristiques
Nombre de pièces
8 pièces
Nombre de chambres
6 chambres
Surface habitable
195 m²
Surface terrain
850 m²
Référence
l800231484
Maison à vendre à Crécy-en-Ponthieu en Somme (80150, Réf : l800231484)
Maison individuelle de famille, havre de paix, dans un environnement ressourçant face à la forêt développant une surface de 195m² sur une parcelle de 850m².
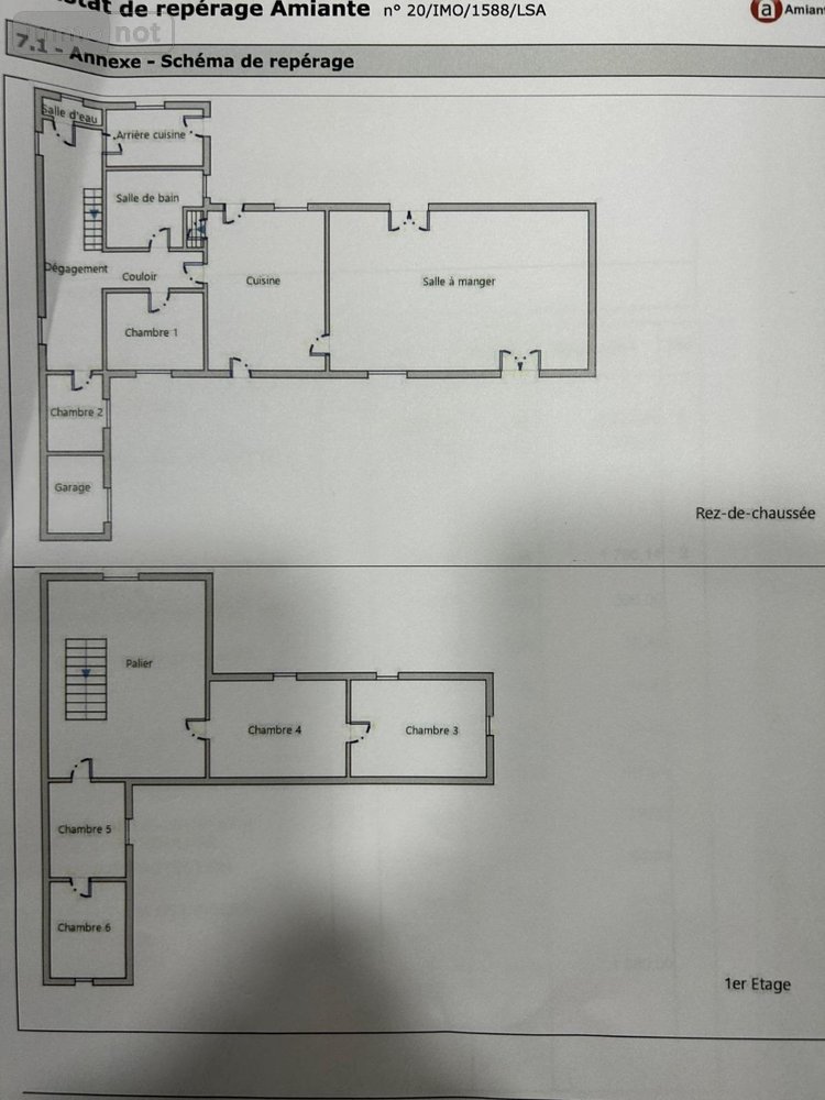
Maison en semi-plain-pied se composant d'une cuisine (16m²), un salon-séjour de 31m², deux chambres en rdc (ou espace bureau, salle de jeux…), une salle de bain, un autre espace douche, une arrière cuisine et un vestibule.
L'étage se compose d'un espace (salle de jeux ou dortoir) de 35m², deux belles chambres + 2 autres chambres (traversantes).
La propriété se compose également d'une cave saine voutée ainsi que d'un garage de 21m² (porte motorisée).
Cette propriété offre de nombreuses possibilités pour une famille ou en résidence secondaire.
Observations : menuiserie double vitrage pvc partout, chauffage gaz (citerne), couverture tuiles, cheminée feu de bois neuve avec insert, TF de 1650€, vue dégagée, parcelle entièrement clôturée et paysagée bénéficiant d'une dépendance et un auvent pour y stocker le bois par exemple, maison développant une surface au sol de 247m², stationnement sur la parcelle de 4 véhicules, en impasse, au calme
Logement pouvant être loué en airbnb (220€/nuit), Abbeville, le Crotoy, aux portes de la baie de Somme, forêt Domaniale de Crecy….
Montant : 239.900€
dont Prix de vente : 231.000 €
dont Honoraires* TTC à la charge de l'acquéreur : 8.900€
Etude Notariale Me FRANCHOIS
111, route de Borre
59190 HAZEBROUCK
03.28.43.00.61/06.73.58.27.83
Crécy-en-Ponthieu (80150)
Carte interactive
Points d'intérêt
Découvrez l'environnement de ce bien immobilier : commerces, écoles, transports et services à proximité.
🏪 Commerces et services
Supermarchés, restaurants, banques et commerces de proximité.
🚇 Transports
Accès aux transports en commun, gares et temps de trajet.
🏫 Éducation
Écoles, collèges, lycées et établissements d'enseignement supérieur.
Diagnostics
En attente des éléments de refontes du DPEConsommation énergétique Max
0 €
Date DPE
14 mai 2020
DPE Energie
92
DPE GES
25
DPE Lettre
C
État des risques
Les informations sur les risques auxquels ce bien est exposé sont disponibles sur le site Géorisques : www.georisques.gouv.fr

Contacter l'office notarial
SELARL Juliette FRANCHOIS-BODDAERT
111 route de Borre 59190 Hazebrouck
Formulaire de contact
Les champs marqués d'un * sont obligatoires
Ces biens peuvent aussi vous intéresser

Achat
Maison
Molliens-Dreuil (80540)

Achat
Maison
Amiens (80000)

Achat
Maison
Acheux-en-Amiénois (80560)

Achat
Garage et parking
Corbie (80800)

Achat
Terrain à bâtir
Ronssoy (80740)

Achat
Maison
Amiens (80000)

Achat
Appartement
Amiens (80000)

Achat
Fonds ou murs commerciaux
Abbeville (80100)

Achat
Terrain à bâtir
Noyelles-en-Chaussée (80150)

Achat
Maison
Villers-Bretonneux (80800)

Achat
Terrain à bâtir
Baizieux (80300)

Achat
Maison
Amiens (80000)


